191
Innovative Grundrisse im Rahmen der Hamburger Wohnraumförderung
Hamburg
Wettbewerb, 2023, 1. Preis
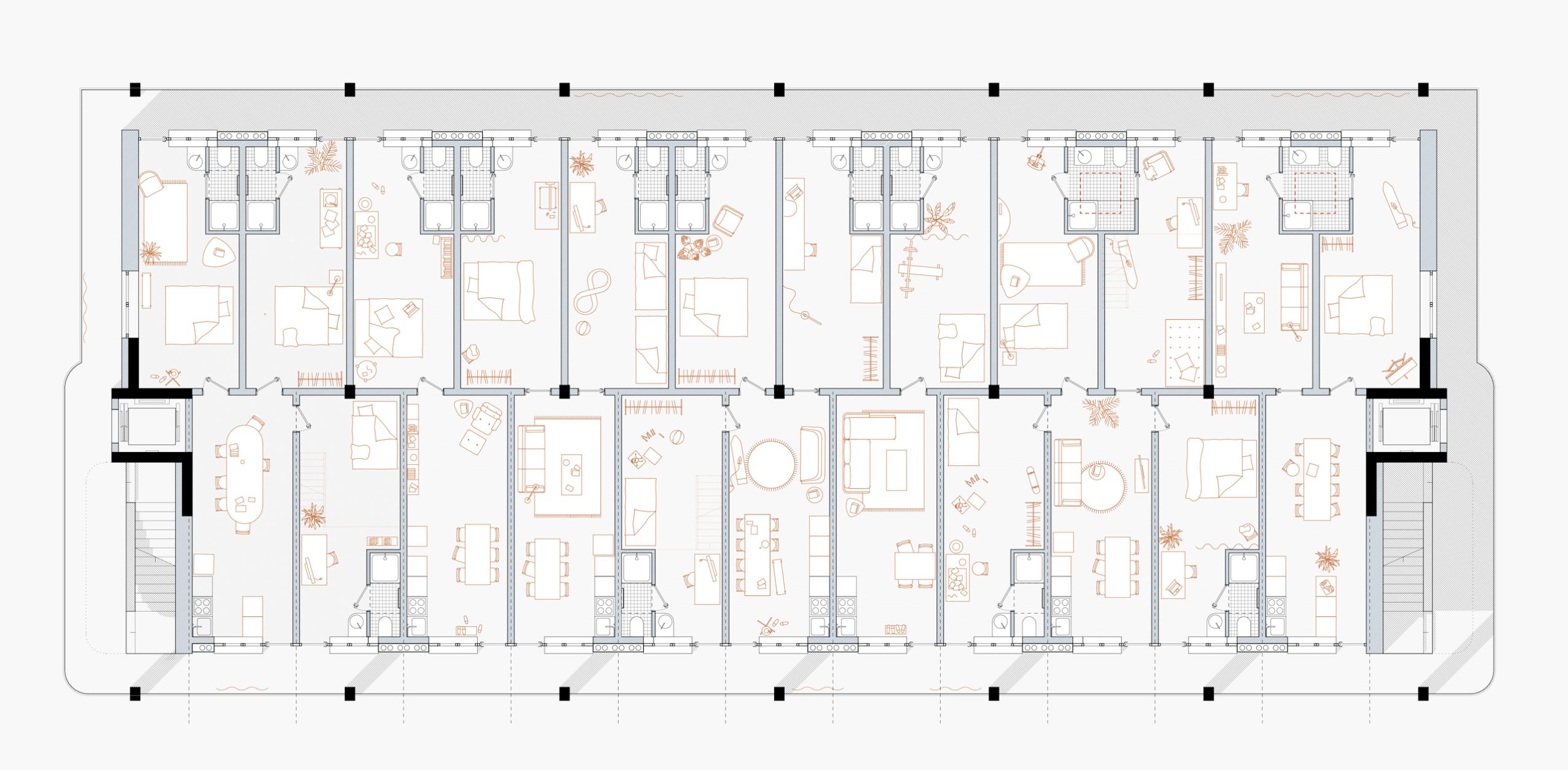
Grundriss Erdgeschoss
Grundriss Regelgeschoss
Grundriss Dachgeschoss

Mitarbeit Wettbewerb
Ron Edelaar, Elli Mosayebi, Christian Inderbitzin, Mirella Mascolo, Paul Dillier, Paul Eckert, Uma Fernández Pérez, Adrian Richter Sibila

Bauherrschaft
Amt für Wohnen, Stadt­entwicklung und Bodenordnung, Hamburg

Publikation
Nachbarschaft gestalten, Jovis 2025